01 42 50 12 13
176 rue de la Convention 75015 Paris

Maison avec Jardin


< Retour

Partager sur

gallery loader
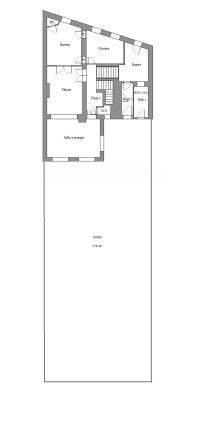
  • Plan rdc avec jardin
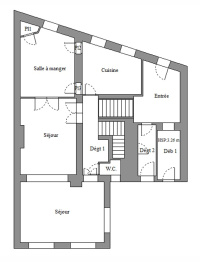
  • Plan RDC
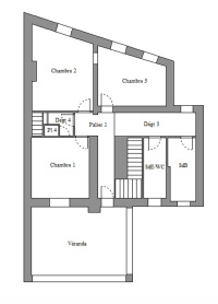
  • Plan 1er étage
  • Plan 2ème étage
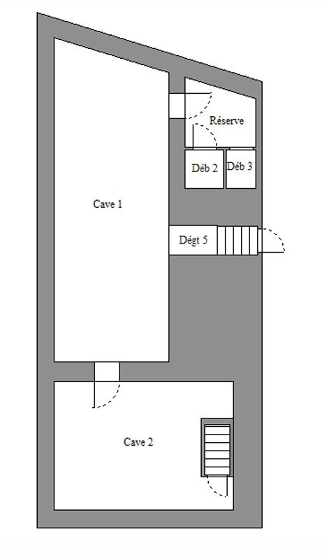
  • Plan entresol

Maison 256 m² - 8 Pièces - Paris 2 480 000


Description de l'offre


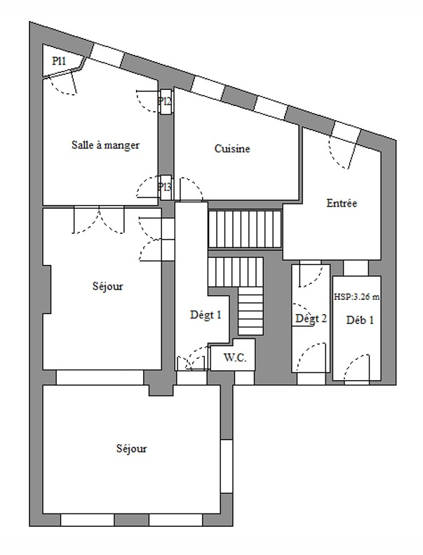
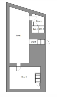
Sur un terrain de 301 m², Maison familiale de 256 m² + entresol de 67 m² et jardin de 156 m² calme et ensoleillé. Elle se compose au rez-de-chaussée surélevé d'une entrée, une triple réception de 55.8 m², une cuisine de 11.6 m², un wc, et un cagibi. Au 1er étage, 3 belles chambres de 16 m², 12.3 m² et 11.9 m², une salle de bains et une salle de douche, des wc, ainsi qu'une belle véranda de 22 m² surplombant le jardin. Au 2ème étage (mansardé), 2 chambres et un cabinet de toilettes, ainsi qu'une pièce non encore aménagée pouvant être une 6ème chambre. A l'entresol, des pièces de stockage et une chaufferie. Au sous-sol, une cave à vin. Terrasse et jardin à l'arrière. La maison date du milieu du XIXème siècle, et les éléments d'origine ont été conservés (parquet, moulures, cheminées). Parfaitement agencée, elle nécessitera toutefois des travaux de rénovation. Emplacement proche des commodités : nombreux commerces, écoles, square. Métro Convention ou Porte de Versailles. . On a 301 m² area, 256 m² family house + 67 m² basement and a 156 m² calm and sunny garden. Including on the ground floor : entrance, triple reception room of 55.8 m², kitchen of 11.6 m², WC, and storage closet. On the 1st floor : 3 beautiful bedrooms of 16 m², 12.3 m² and 11.9 m², bathroom, shower room, WC, as well as a lovely 22 m² veranda overlooking the garden. On the 2nd floor (attic): 2 bedrooms and WC, plus an unconverted space that could become a 6th bedroom. In the basement : storage rooms, boiler room, and wine cellar. Terrace and garden at the back. The house is from the mid-19th century, and original features have been preserved (parquet flooring, mouldings, fireplaces). Perfectly laid out, it will nevertheless require renovation work. Location close to amenities : many shops, schools, park. Metro Convention or Porte de Versailles.

Diagnostics de performance énergétique


DPE
DPE

Montant estimé des dépenses annuelles d'énergie pour un usage standard est compris entre 5 050 € et 6 890 € . Prix moyens des énergies indexés sur les années 2021, 2022 et 2023 (abonnements compris).

Descriptif du bien


Code postal 75015


Surface habitable (m²) 256 m²


surface terrain 301 m²


Surface loi Carrez (m²) 256 m²


Nombre de chambre(s) 6


Nombre de pièces 8


Nombre de niveaux 3


Nb de salle de bains 1


Nb de salle d'eau 2


Cuisine SEPAREE


Mode de chauffage Gaz


Type de chauffage Autre


Format de chauffage AUTRE


Terrasse OUI


Année de construction 1850


Quartier Metro Convention, Porte de Versailles


Copropriété NON


Prix de vente honoraires TTC inclus 2 480 000 €


Taxe foncière annuelle 4 420 €


Cette annonce vous intéresse ?


* Champs obligatoires

* : Les informations recueillies sur ce formulaire sont enregistrées dans un fichier informatisé par La Boite Immo agissant comme Sous-traitant du traitement pour la gestion de la clientèle/prospects de l'Agence / du Réseau qui reste Responsable du Traitement de vos Données personnelles. La base légale du traitement repose sur l'intérêt légitime de l'Agence / du Réseau. Elles sont conservées jusqu'à demande de suppression et sont destinées à l'Agence / au Réseau. Conformément à la loi « informatique et libertés », vous disposez des droits d’accès, de rectification, d’effacement, d’opposition, de limitation et de portabilité de vos données. Vous pouvez retirer votre consentement à tout moment en contactant directement l’Agence / Le Réseau. Consultez le site https://cnil.fr/fr pour plus d’informations sur vos droits. Si vous estimez, après avoir contacté l'Agence / le Réseau, que vos droits « Informatique et Libertés » ne sont pas respectés, vous pouvez adresser une réclamation à la CNIL. Nous vous informons de l’existence de la liste d'opposition au démarchage téléphonique « Bloctel », sur laquelle vous pouvez vous inscrire ici : https://www.bloctel.gouv.fr Dans le cadre de la protection des Données personnelles, nous vous invitons à ne pas inscrire de Données sensibles dans le champ de saisie libre.
Ce site est protégé par reCAPTCHA, les Politiques de Confidentialité et les Conditions d'Utilisation de Google s'appliquent.