01 42 50 12 13
176 rue de la Convention 75015 Paris

3 Pièces


< Retour

Partager sur

gallery loader

Appartement 53 m² - 3 Pièces - Paris 520 000


Description de l'offre


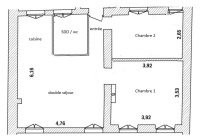
rue Paul Fort / M° Porte d'Orléans. 3 Pièces 52.2 m² calme et très lumineux, donnant sur une jolie cour arborée. Appartement en parfait état, comprenant une petite entrée, un double séjour de 26 m² avec cuisine américaine équipée, 2 chambres de 13.6 m² et 9.4 m², salle de douche avec wc. Cave au sous-sol. 1er étage d'un petit immeuble de 2 étages. Beaucoup de charme. Emplacement proche de toutes commodités : Métro, Tram T3, et nombreux bus à 3 minutes, RER B (Cité Universitaire) à 8 minutes. Le Parc Montsouris est à 7 minutes, et de nombreux commerces sont à proximité immédiate.

Diagnostics de performance énergétique


DPE
DPE

Logement à consommation énergétique excessive : classe F

Montant estimé des dépenses annuelles d'énergie pour un usage standard est compris entre 1 390 € et 1 910 € . Prix moyens des énergies indexés sur les années 2021, 2022 et 2023 (abonnements compris).

Descriptif du bien


Code postal 75014


Surface habitable (m²) 53 m²


Surface loi Carrez (m²) 52,19 m²


Nombre de chambre(s) 2


Nombre de pièces 3


Etage 1


Ascenseur NON


Vue sur cour arborée


Cuisine AMERICAINE


Type de cuisine EQUIPEE


Mode de chauffage Electrique


Type de chauffage Autre


Format de chauffage Individuel


Cave OUI


Année de construction 1880


Copropriété OUI


nombre de lots 27


quote part des charges annuelles ( € ) 3 593 €


plan de sauvegarde NON


statut du syndic pas de procédure en cours


Prix de vente honoraires TTC inclus 520 000 €


Charges 3 593 €


Cette annonce vous intéresse ?


* Champs obligatoires

* : Les informations recueillies sur ce formulaire sont enregistrées dans un fichier informatisé par La Boite Immo agissant comme Sous-traitant du traitement pour la gestion de la clientèle/prospects de l'Agence / du Réseau qui reste Responsable du Traitement de vos Données personnelles. La base légale du traitement repose sur l'intérêt légitime de l'Agence / du Réseau. Elles sont conservées jusqu'à demande de suppression et sont destinées à l'Agence / au Réseau. Conformément à la loi « informatique et libertés », vous disposez des droits d’accès, de rectification, d’effacement, d’opposition, de limitation et de portabilité de vos données. Vous pouvez retirer votre consentement à tout moment en contactant directement l’Agence / Le Réseau. Consultez le site https://cnil.fr/fr pour plus d’informations sur vos droits. Si vous estimez, après avoir contacté l'Agence / le Réseau, que vos droits « Informatique et Libertés » ne sont pas respectés, vous pouvez adresser une réclamation à la CNIL. Nous vous informons de l’existence de la liste d'opposition au démarchage téléphonique « Bloctel », sur laquelle vous pouvez vous inscrire ici : https://www.bloctel.gouv.fr Dans le cadre de la protection des Données personnelles, nous vous invitons à ne pas inscrire de Données sensibles dans le champ de saisie libre.
Ce site est protégé par reCAPTCHA, les Politiques de Confidentialité et les Conditions d'Utilisation de Google s'appliquent.